
【產品用途】
盲板閥又稱眼鏡閥、翻板閥、扇形閥,廣泛應用于工礦企業、市政、環保等行業的氣體介質管理系統中,尤其適用于有害、有毒、易燃氣體的絕對切斷。亦適宜做管道終端的盲板,以縮短檢修時間或方便連接新的管路。
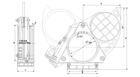
【產品結構及特點】
液動扇形盲板閥主要由左閥體、右閥體、絲桿副、翻板、密封圈、杠桿、液壓油缸等零件組成,并由底座、支撐柱構成一個剛性結構體。閥門中設有夾緊油缸和翻板油缸,夾緊油缸通過杠桿副和絲杠螺旋副驅動左、右閥體完成松開、夾緊動作,翻板油缸驅動翻板完成開關動作。橡膠密封圈鑲嵌在翻板上,具有耐高溫、密封性能好、更換方便、使用壽命長等特點。
【產品主要參數】
公稱壓力MPa 0.25 0.15
0.10 0.05
密封試驗壓力MPa 0.275 0.165 0.11 0.055
強度試驗壓力MPa 0.40 0.225 0.15 0.075
適用溫度℃ 丁腈橡膠 硅橡膠 氟橡膠 <120 <250 <300
【主要外形和連接尺寸】
|
DN |
D |
D1 |
b |
n-φd |
L |
|
300 |
440 |
395 |
18 |
12-φ22 |
500 |
|
350 |
490 |
445 |
18 |
12-φ22 |
600 |
|
400 |
540 |
495 |
24 |
16-φ22 |
600 |
|
450 |
595 |
550 |
24 |
16-φ22 |
600 |
|
500 |
645 |
600 |
26 |
20-φ22 |
600 |
|
600 |
755 |
705 |
26 |
20-φ26 |
600 |
|
700 |
860 |
810 |
26 |
24-φ26 |
600 |
|
800 |
975 |
920 |
35 |
24-φ30 |
800 |
|
900 |
1075 |
1020 |
35 |
24-φ30 |
800 |
|
1000 |
1175 |
1120 |
35 |
28-φ30 |
800 |
|
1100 |
1275 |
1220 |
35 |
36-φ30 |
800 |
|
1200 |
1375 |
1320 |
35 |
32-φ30 |
800 |
|
1300 |
1475 |
1420 |
35 |
36-φ30 |
800 |
|
1400 |
1575 |
1520 |
35 |
36-φ30 |
800 |
|
1500 |
1675 |
1620 |
35 |
36-φ30 |
850 |
|
1600 |
1790 |
1730 |
35 |
40-φ30 |
850 |
|
1800 |
1990 |
1930 |
35 |
44-φ30 |
1100 |
【產品結構】
